
50 m² Ferienwohnung
Borre4170 Borre - Klintholm Havneby 70
Borre
Objekt:
- Apartment
- 50m2
- 1
- 2
- 4
- Haustiere: nein
Ausstattung:
Beschreibung
Die Ferienwohnung bietet einen atemberaubenden Meerblick und ist ideal für bis zu vier Personen, die Ruhe und Erholung in malerischer Umgebung suchen. Perfekt für unvergessliche Urlaubsmomente.
Die Ferienwohnung befindet sich in einer ruhigen Lage, nur wenige Schritte vom charmanten Hafen entfernt, der das Herz des örtlichen Lebens bildet. Die Anreise gestaltet sich unkompliziert, sowohl mit dem Auto als auch mit den öffentlichen Verkehrsmitteln. Der nächstgelegene Strand ist lediglich 1 Kilometer entfernt und lädt zu entspannenden Stunden am Wasser ein. In der Umgebung gibt es zahlreiche Wander- und Radwege, die in die malerische Natur führen und gleichzeitig die Möglichkeit bieten, die lokale Flora und Fauna zu entdecken. Verschiedene Einkaufsmöglichkeiten sind in rund 2 Kilometern erreichbar, während ein gemütliches Café, ideal für eine kleine Pause, nur 500 Meter entfernt liegt. Die ruhige Atmosphäre des Dorfes ergänzt das Angebot an Aktivitäten und sorgt für einen erholsamen Aufenthalt.
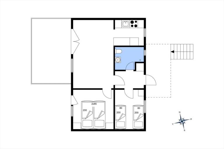
Die charmante Ferienwohnung im Klintholm Marina Park bietet ein einladendes Ambiente und durchdachte Ausstattung, die den Aufenthalt angenehm gestalten. Sie verfügt über einen hellen Eingangsbereich mit einer Waschmaschine und ein gemütliches Wohnschlafzimmer mit Essplatz und TV (via Fibernet), der auf den balkon führt. Die offene Küche ist modern ausgestattet mit Geschirrspüler, Backofen, Mikrowelle, Kühlschrank mit Gefriermöglichkeit, Wasserkocher und Kaffeemaschine. In den zwei Schlafzimmern finden sich ein Doppelbett sowie ein Einzelbett mit Hochbett. Das Duschbad komplettiert das großzügige Raumangebot. Außen lädt der Balkon mit Gartenmöbeln zur Entspannung ein, während die Umgebung mit zahlreichen Freizeitmöglichkeiten wie Restaurants, Spielplatz und Radweg begeistert. Die Lage in direkter Nähe zum Sportboothafen und Strand sorgt für eine perfekte Erholung.
Die Ferienwohnung bietet einen einladenden Balkon, ideal für entspannte Stunden im Freien. Hier lässt sich der Morgenkaffee genießen oder der Abend bei einem Glas Wein ausklingen. Der Balkon ist ein attraktiver Rückzugsort, um die frische Luft und die Aussicht in vollen Zügen zu erleben und die Seele baumeln zu lassen. Entspannung pur erwartet die Gäste.
Die Ferienwohnung bietet atemberaubenden Meerblick, der den perfekten Rahmen für entspannte Tage am Strand schafft. Großzügige Fenster fluten den Raum mit Licht und ermöglichen einen direkten Blick auf die sanften Wellen. Gemütliche Möbel und moderne Annehmlichkeiten sorgen für einen komfortablen Aufenthalt, während die ruhige Lage Erholung und Erlebnisse in der Natur vereint.
Die Ferienwohnung befindet sich in einer ruhigen Lage, nur wenige Schritte vom charmanten Hafen entfernt, der das Herz des örtlichen Lebens bildet. Die Anreise gestaltet sich unkompliziert, sowohl mit dem Auto als auch mit den öffentlichen Verkehrsmitteln. Der nächstgelegene Strand ist lediglich 1 Kilometer entfernt und lädt zu entspannenden Stunden am Wasser ein. In der Umgebung gibt es zahlreiche Wander- und Radwege, die in die malerische Natur führen und gleichzeitig die Möglichkeit bieten, die lokale Flora und Fauna zu entdecken. Verschiedene Einkaufsmöglichkeiten sind in rund 2 Kilometern erreichbar, während ein gemütliches Café, ideal für eine kleine Pause, nur 500 Meter entfernt liegt. Die ruhige Atmosphäre des Dorfes ergänzt das Angebot an Aktivitäten und sorgt für einen erholsamen Aufenthalt.
Die charmante Ferienwohnung im Klintholm Marina Park bietet ein einladendes Ambiente und durchdachte Ausstattung, die den Aufenthalt angenehm gestalten. Sie verfügt über einen hellen Eingangsbereich mit einer Waschmaschine und ein gemütliches Wohnschlafzimmer mit Essplatz und TV (via Fibernet), der auf den balkon führt. Die offene Küche ist modern ausgestattet mit Geschirrspüler, Backofen, Mikrowelle, Kühlschrank mit Gefriermöglichkeit, Wasserkocher und Kaffeemaschine. In den zwei Schlafzimmern finden sich ein Doppelbett sowie ein Einzelbett mit Hochbett. Das Duschbad komplettiert das großzügige Raumangebot. Außen lädt der Balkon mit Gartenmöbeln zur Entspannung ein, während die Umgebung mit zahlreichen Freizeitmöglichkeiten wie Restaurants, Spielplatz und Radweg begeistert. Die Lage in direkter Nähe zum Sportboothafen und Strand sorgt für eine perfekte Erholung.
Die Ferienwohnung bietet einen einladenden Balkon, ideal für entspannte Stunden im Freien. Hier lässt sich der Morgenkaffee genießen oder der Abend bei einem Glas Wein ausklingen. Der Balkon ist ein attraktiver Rückzugsort, um die frische Luft und die Aussicht in vollen Zügen zu erleben und die Seele baumeln zu lassen. Entspannung pur erwartet die Gäste.
Die Ferienwohnung bietet atemberaubenden Meerblick, der den perfekten Rahmen für entspannte Tage am Strand schafft. Großzügige Fenster fluten den Raum mit Licht und ermöglichen einen direkten Blick auf die sanften Wellen. Gemütliche Möbel und moderne Annehmlichkeiten sorgen für einen komfortablen Aufenthalt, während die ruhige Lage Erholung und Erlebnisse in der Natur vereint.





























