
45 m² Ferienwohnung
ScharbeutzSaltwater Studio
Scharbeutz
Objekt:
- Apartment
- 45m2
- 1
- 1
- 4
- Haustiere: ja
Ausstattung:
Beschreibung
Ferienwohnung Saltwater Studio mit Balkon in Scharbeutz
Die Schlüsselübergabe erfolgt über einen Tresor am Kraushaar Ferienwohnungen Servicebüro in der Seestraße 47, 23683 Scharbeutz.
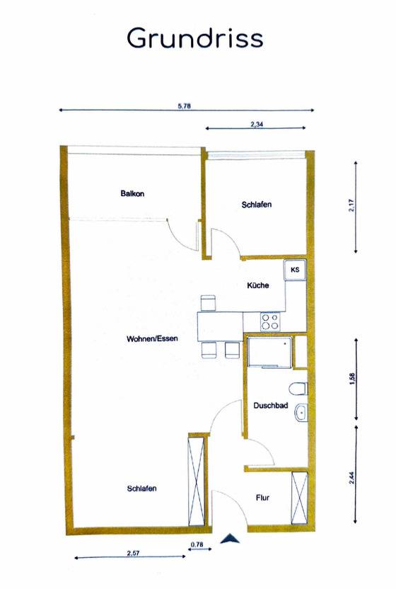
Großzügige 2-Zimmer-Ferienwohnung in Scharbeutz mit 45 m² Wohnfläche für bis zu 4 Personen.
Der helle Wohnbereich bildet das Herzstück der Wohnung und lädt mit gemütlicher Sitzgelegenheit, TV und Radio zu entspannten Abenden nach einem Tag am nahegelegenem Strand ein. Von hier aus gelangen Sie auf den Balkon, auf dem Sie die frische Ostseeluft genießen können. Die moderne Küchenzeile ist bestens ausgestattet und verfügt u. a. über Cerankochfeld, Backofen, Geschirrspüler, Kühlschrank mit Gefrierfach, Kaffeemaschine (Filter und Senseo-Kapsel), Wasserkocher und Toaster. Ein Essbereich bietet Platz für gemeinsame Mahlzeiten. Das Schlafzimmer ist mit einem komfortablen Doppelbett ausgestattet, während im Wohnbereich eine weitere Schlafmöglichkeit zur Verfügung steht. Das moderne Badezimmer verfügt über eine Dusche, einen Haartrockner sowie einen beheizbaren Handtuchhalter. Ein Kinderhochstuhl kann bei Bedarf hinzugebucht werden.
Professionelle Fotos folgen voraussichtlich Ende März 2026.
Ein PKW-Stellplatz ist für Sie in der Duplex-Garage reserviert (max. KFZ-Maße: H: 1,52 m, B: 2,00 m, L: 5 m). Für Fahrräder steht ein gemeinschaftlicher Fahrradabstellraum im Keller sowie eine Abstellmöglichkeit am Parkplatz zur Verfügung. WLAN ist inklusive.
Sie möchten Ihren Hund mit in den Urlaub nehmen? Ein Hund darf gegen Aufpreis mitreisen. Bitte haben Sie Verständnis, dass es sich bei dieser Ferienwohnung um ein Nichtraucherdomizil handelt.
Im Appartementhaus gibt es gegen Gebühr eine gemeinschaftlich nutzbare Waschmaschine, sowie einen Trockner. Das Haus verfügt im großen, wunderschön angelegten Garten über ein auf 28° beheiztes Außenschwimmbad (saisonbedingt, ca. 15.05.-15.09), welches Ihnen kostenlos zur Verfügung steht.
Schlafzimmer: 1 Doppelbett (140 x 200 cm), Verdunkelung: Vorhang und Jalousie, TV, kein Platz für ein Babybett vorhanden
Wohn-Schlafzimmer: 1 Doppelbett (160 x 200 cm), Kleiderschrank, Verdunkelung: Vorhand und Jalousie, Smart-TV, kein Platz für ein Babybett vorhanden
Scharbeutz begeistert mit seinem feinsandigen Ostseestrand, der lebendigen Promenade und zahlreichen Cafés und Restaurants – perfekte Voraussetzungen für einen erholsamen Urlaub an der Ostsee.
Die Schlüsselübergabe erfolgt über einen Tresor am Kraushaar Ferienwohnungen Servicebüro in der Seestraße 47, 23683 Scharbeutz.
Großzügige 2-Zimmer-Ferienwohnung in Scharbeutz mit 45 m² Wohnfläche für bis zu 4 Personen.
Der helle Wohnbereich bildet das Herzstück der Wohnung und lädt mit gemütlicher Sitzgelegenheit, TV und Radio zu entspannten Abenden nach einem Tag am nahegelegenem Strand ein. Von hier aus gelangen Sie auf den Balkon, auf dem Sie die frische Ostseeluft genießen können. Die moderne Küchenzeile ist bestens ausgestattet und verfügt u. a. über Cerankochfeld, Backofen, Geschirrspüler, Kühlschrank mit Gefrierfach, Kaffeemaschine (Filter und Senseo-Kapsel), Wasserkocher und Toaster. Ein Essbereich bietet Platz für gemeinsame Mahlzeiten. Das Schlafzimmer ist mit einem komfortablen Doppelbett ausgestattet, während im Wohnbereich eine weitere Schlafmöglichkeit zur Verfügung steht. Das moderne Badezimmer verfügt über eine Dusche, einen Haartrockner sowie einen beheizbaren Handtuchhalter. Ein Kinderhochstuhl kann bei Bedarf hinzugebucht werden.
Professionelle Fotos folgen voraussichtlich Ende März 2026.
Ein PKW-Stellplatz ist für Sie in der Duplex-Garage reserviert (max. KFZ-Maße: H: 1,52 m, B: 2,00 m, L: 5 m). Für Fahrräder steht ein gemeinschaftlicher Fahrradabstellraum im Keller sowie eine Abstellmöglichkeit am Parkplatz zur Verfügung. WLAN ist inklusive.
Sie möchten Ihren Hund mit in den Urlaub nehmen? Ein Hund darf gegen Aufpreis mitreisen. Bitte haben Sie Verständnis, dass es sich bei dieser Ferienwohnung um ein Nichtraucherdomizil handelt.
Im Appartementhaus gibt es gegen Gebühr eine gemeinschaftlich nutzbare Waschmaschine, sowie einen Trockner. Das Haus verfügt im großen, wunderschön angelegten Garten über ein auf 28° beheiztes Außenschwimmbad (saisonbedingt, ca. 15.05.-15.09), welches Ihnen kostenlos zur Verfügung steht.
Schlafzimmer: 1 Doppelbett (140 x 200 cm), Verdunkelung: Vorhang und Jalousie, TV, kein Platz für ein Babybett vorhanden
Wohn-Schlafzimmer: 1 Doppelbett (160 x 200 cm), Kleiderschrank, Verdunkelung: Vorhand und Jalousie, Smart-TV, kein Platz für ein Babybett vorhanden
Scharbeutz begeistert mit seinem feinsandigen Ostseestrand, der lebendigen Promenade und zahlreichen Cafés und Restaurants – perfekte Voraussetzungen für einen erholsamen Urlaub an der Ostsee.
Hausinfo
Balkon: West-Ausrichtung, 4,5m², überdacht, 5cm SchwelleZugang zum Haus: einige Stufen





