
Zurück zur Liste Lemkenhafen Apartment
42 m² Ferienwohnung
LemkenhafenLHMW19A14 - FeWo 'Seglerfründ IV"
Lemkenhafen
Objekt:
- Apartment
- 42m2
- 1
- 2
- 4
- Haustiere: nein
Ausstattung:
Beschreibung
Kurzbeschreibung:
Gemütliche Ferienwohnung mit Balkon in ruhiger Lage. Genießen Sie einen erholsamen Urlaub mit der ganzen Familie in Lemkenhafen.
Lagebeschreibung:
Erleben Sie erholsame Urlaubstage in Lemkenhafen auf Fehmarn! Die gemütliche Ferienwohnung liegt nur wenige Schritte vom Hafen und der historischen Mühle entfernt. Genießen Sie die maritime Atmosphäre, entspannen Sie im Garten mit Terrasse oder erkunden Sie die Insel mit dem Rad. Ob Segeln, Surfen oder einfach die Natur genießen – Lemkenhafen bietet für jeden das perfekte Inselerlebnis.
Ausstattungen:
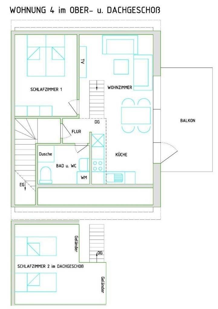
Die gemütliche Ferienwohnung bietet Platz für bis zu 4 Personen und überzeugt durch eine praktische Ausstattung sowie einen hellen, freundlichen Wohnbereich. Das Wohnzimmer mit Essplatz lädt zum gemeinsamen Verweilen ein und ist mit LCD-Fernseher, Sat-Anlage und Stereoanlage ausgestattet. In der gesamten Unterkunft steht Ihnen WLAN zur Verfügung.
Die voll ausgestattete, integrierte Küchenzeile lässt keine Wünsche offen: vorhanden sind unter anderem Backofen, Mikrowelle, Kochfelder, Spülmaschine, Kühlschrank mit Gefrierfach, Kaffeemaschine, Wasserkocher, Toaster, Eierkocher sowie ausreichend Geschirr, Besteck, Töpfe und Pfannen.
Das Schlafzimmer ist mit einem Doppelbett und Kleiderschrank eingerichtet. Zwei weitere Schlafplätze befinden sich auf dem ausgebauten Spitzboden, der über eine steile Spartreppe erreichbar ist.
â ï¸ Wichtiger Hinweis: Aufgrund der Spartreppe ist der Spitzboden für Kleinkinder nicht geeignet.
Das Badezimmer verfügt über Dusche, Waschbecken, WC sowie eine Waschmaschine.
Ein Balkon mit Gartenmöbeln und Sonnenschirm rundet das Angebot ab und bietet einen schönen Platz zum Entspannen im Freien.
Außenbereich:
Im Garten können Schaukel und Sandkasten mitgenutzt werden.
Besonderes:
Schuppen für Fahrräder und Surfmaterial
Allgemeine Informationen:
Anreise ab 16:00 Uhr
Abreise bis 10:00 Uhr
Wäschepakete können optional dazu gebucht werden.
Zusätzliche Preisinfos:
Die Kurabgabe für die Insel Fehmarn wird separat berechnet.
Nach der Buchung stehen Ihnen zusätzlich die Zahlungsmöglichkeiten Banküberweisung, Kreditkarte, Sofortüberweisung und Google/Apple Pay zur Verfügung. Weitere Informationen entnehmen Sie bitte Ihrer Buchungsbestätigung.
Gemütliche Ferienwohnung mit Balkon in ruhiger Lage. Genießen Sie einen erholsamen Urlaub mit der ganzen Familie in Lemkenhafen.
Lagebeschreibung:
Erleben Sie erholsame Urlaubstage in Lemkenhafen auf Fehmarn! Die gemütliche Ferienwohnung liegt nur wenige Schritte vom Hafen und der historischen Mühle entfernt. Genießen Sie die maritime Atmosphäre, entspannen Sie im Garten mit Terrasse oder erkunden Sie die Insel mit dem Rad. Ob Segeln, Surfen oder einfach die Natur genießen – Lemkenhafen bietet für jeden das perfekte Inselerlebnis.
Ausstattungen:
Die gemütliche Ferienwohnung bietet Platz für bis zu 4 Personen und überzeugt durch eine praktische Ausstattung sowie einen hellen, freundlichen Wohnbereich. Das Wohnzimmer mit Essplatz lädt zum gemeinsamen Verweilen ein und ist mit LCD-Fernseher, Sat-Anlage und Stereoanlage ausgestattet. In der gesamten Unterkunft steht Ihnen WLAN zur Verfügung.
Die voll ausgestattete, integrierte Küchenzeile lässt keine Wünsche offen: vorhanden sind unter anderem Backofen, Mikrowelle, Kochfelder, Spülmaschine, Kühlschrank mit Gefrierfach, Kaffeemaschine, Wasserkocher, Toaster, Eierkocher sowie ausreichend Geschirr, Besteck, Töpfe und Pfannen.
Das Schlafzimmer ist mit einem Doppelbett und Kleiderschrank eingerichtet. Zwei weitere Schlafplätze befinden sich auf dem ausgebauten Spitzboden, der über eine steile Spartreppe erreichbar ist.
â ï¸ Wichtiger Hinweis: Aufgrund der Spartreppe ist der Spitzboden für Kleinkinder nicht geeignet.
Das Badezimmer verfügt über Dusche, Waschbecken, WC sowie eine Waschmaschine.
Ein Balkon mit Gartenmöbeln und Sonnenschirm rundet das Angebot ab und bietet einen schönen Platz zum Entspannen im Freien.
Außenbereich:
Im Garten können Schaukel und Sandkasten mitgenutzt werden.
Besonderes:
Schuppen für Fahrräder und Surfmaterial
Allgemeine Informationen:
Anreise ab 16:00 Uhr
Abreise bis 10:00 Uhr
Wäschepakete können optional dazu gebucht werden.
Zusätzliche Preisinfos:
Die Kurabgabe für die Insel Fehmarn wird separat berechnet.
Nach der Buchung stehen Ihnen zusätzlich die Zahlungsmöglichkeiten Banküberweisung, Kreditkarte, Sofortüberweisung und Google/Apple Pay zur Verfügung. Weitere Informationen entnehmen Sie bitte Ihrer Buchungsbestätigung.
Preisinformationen
Die Kurabgabe für die Insel Fehmarn wird separat berechnet.














