Kontakt
Für Vermieter
Login
Ferienhäuser & Ferienwohnungen
Personen
1
2
3
4
5
6
7
8
mehr als 8
Suchen
Zurück zur Liste
Ferienhaus
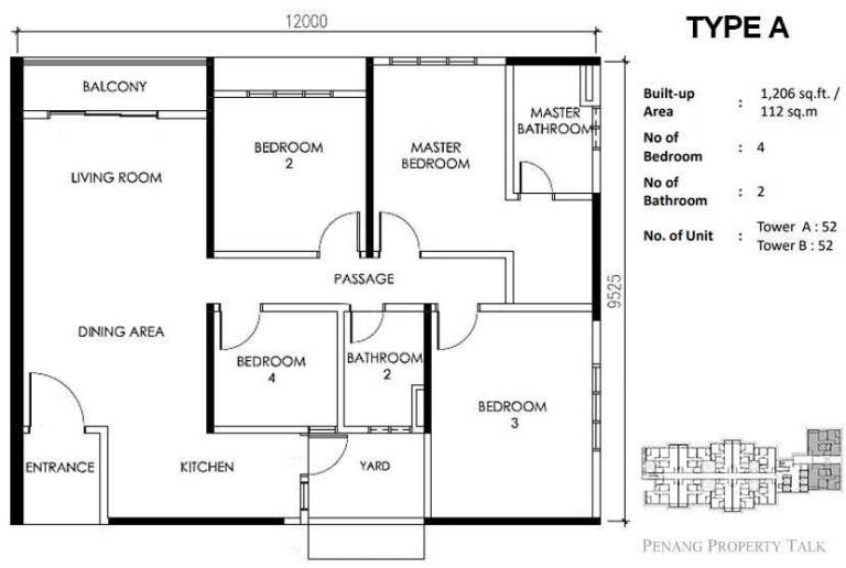
112 m² Ferienhaus
Bukit Mertajam
Bukit Mertajam
Objekt:
Typ
Ferienhaus
Größe
112m
2
Badezimmer
2
Schlafzimmer
4
Personen
8
Haustiere: ja
Ausstattung:
Buchung
Beschreibung
Hausinfo
Karte
Beschreibung
Hausinfo
Karte