Zurück zur Liste 5 Chome-10 Zaimokuza Villa


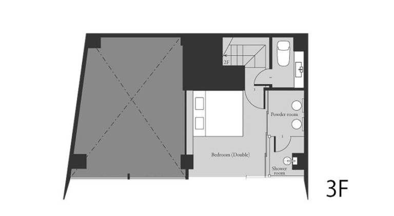
179 m² Villa

5 Chome-10 Zaimokuza

5 Chome-10 Zaimokuza

Objekt:

  • Villa
  • 179m2
  • 1
  • 2
  • 4
  • Haustiere: ja

Ausstattung:

Karte